Tama New Town Live Nagaike Renjoji Koen Dori Nibangai| 3LDK|Hachiouji別所

Tama New Town Live Nagaike Renjoji Koen Dori Nibangai| 3LDK|Hachiouji別所

  • UR
  • NO KEY MONEY

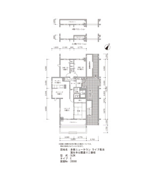
間取り画像

▲ Click to enlarge(All 3 images

Address Bessho Hachiouji Tokyo1-31
Access Keio Sagamihara Line Keio Horinouchi Station + 10 minutes walk
Odakyu Tama Line Karakida Station 4 minutes bus ( to『土橋公園』 bus stop) + 18 minutes walk
Keio Sagamihara Line Minami Osawa Station 11 minutes bus ( to『松木小学校入口』 bus stop) + 2 minutes walk
Rent 136,200円
Security Deposit 2 months Gratuity fee 0 month
Renewal fee 0 month Deposit -
Free rent - Common service fee 5,300円
Brokerage fee 0 month Total Unit 84
Floor 4F Building age 32年
Layout 3LDK Size(sq. m) 84㎡
Parking 機械 空き台数:14台 料金:8,580円近隣駐車場のご案内・多摩ニュータウン ライブ長池 コリナス長池
Japanese Site 多摩ニュータウン ライブ長池 蓮生寺公園通り二番街
Building feature
  • CATV
  • Optical wiring
Room feature
  • Air conditioner
  • Stove type stove
  • Two or More Cook-stove
  •  Automatic hot water filling function
  •  Intercom with monitor
  • Separate kitchen
  • Bath and toilet are separated
  • Auxiliary Heater
  • Wooden Flooring
  • Balcony

※ Facilities vary by room/building