Green Town Hikarigaoka| 3LDK|Kashiwa光ケ丘団地

Green Town Hikarigaoka| 3LDK|Kashiwa光ケ丘団地

  • UR
  • NO KEY MONEY

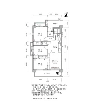
間取り画像

▲ Click to enlarge(All 9 images

Address Hikarigaokadanchi Kashiwa Chiba3
Access JR Joban Line Minami Kashiwa Station 5 minutes bus ( to『聖光ヶ丘病院』 bus stop) + 2 minutes walk
Tobu Noda Line Masuo Station + 27 minutes walk
Tobu Noda Line Shin-kashiwa Station + 22 minutes walk
Rent 108,100円
Security Deposit 2 months Gratuity fee 0 month
Renewal fee 0 month Deposit -
Free rent - Common service fee 4,600円
Brokerage fee 0 month Total Unit 621
Floor 5F Building age 23年~31年
Layout 3LDK Size(sq. m) 73㎡
Parking 平面 空き台数:20台 料金:7,480円自走 空き台数:8台 料金:7,480円~8,470円機械 空き台数:4台 料金:7,480円
Japanese Site グリーンタウン光ヶ丘
Building feature
  • CATV
  • BS
  • Optical wiring
  • LAN in residential building
  • Elevator
  • Surveillance camera
Room feature
  • Air conditioner
  • Drop-in stove
  •  Automatic hot water filling function
  •  Intercom with monitor
  • Floor Heating
  • Separate kitchen
  • BS Antenna
  • Bath and toilet are separated
  • Auxiliary Heater
  • Balcony
  • Screen Door

※ Facilities vary by room/building