Saint Vallier Higashi Nagai| 1LDK|Osaka-Sumiyoshi長居東

Saint Vallier Higashi Nagai| 1LDK|Osaka-Sumiyoshi長居東

  • UR
  • NO KEY MONEY

間取り画像

▲ Click to enlarge(All 3 images

Address Nagai-Higashi Osaka-Sumiyoshi Osaka二丁目14番・15番、苅田一丁目4番・12番・13番、苅田二丁目2番
Access Kintetsu Minami Osaka Line Yata Station + 14 minutes walk
Osaka Municipal Midosuji Line Nagai Station + 11 minutes walk
JR Hanwa Line Nagai Station + 11 minutes walk
Rent 76,000円
Security Deposit 2 months Gratuity fee 0 month
Renewal fee 0 month Deposit -
Free rent - Common service fee 5,000円
Brokerage fee 0 month Total Unit 860
Floor 4F Building age 22年~32年
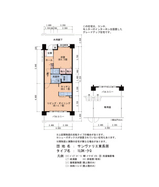
Layout 1LDK Size(sq. m) 53㎡
Parking 平面 空き台数:12台 料金:16,940円~18,590円機械 空き台数:13台 料金:15,290円~18,590円近隣駐車場のご案内・ふれあいプラザ長居公園南
Japanese Site サンヴァリエ東長居
Building feature
  • CATV
  • BS
  • LAN in residential building
  • Optical wiring
  • Elevator
  • Surveillance camera
Room feature
  • Drop-in stove
  •  Automatic hot water filling function
  •  Intercom with monitor
  • Separate kitchen
  • Shoes box
  • BS Antenna
  • Bath and toilet are separated
  • Auxiliary Heater
  • Balcony

※ Facilities vary by room/building