Urban Mirai Higashi Omiya Nishi 1Bangai| 3LDK|Minuma-Saitama春野

Urban Mirai Higashi Omiya Nishi 1Bangai| 3LDK|Minuma-Saitama春野

  • UR
  • NO KEY MONEY

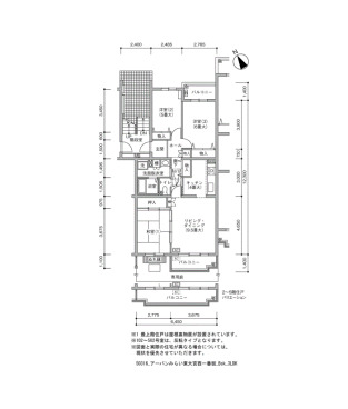
間取り画像

▲ Click to enlarge(All 3 images

Address Haruno Minuma-Saitama Saitama2-4
Access JR Tohoku-honsen Higahsi-ohmiya Station 10 minutes bus ( to『西三番街』 bus stop) + 4 minutes walk
Tobu Noda Line Nanasato Station 9 minutes bus ( to『西三番街』 bus stop) + 4 minutes walk
JR Tohoku-honsen Hasuda Station + 44 minutes walk
Rent 84,300円
Security Deposit 2 months Gratuity fee 0 month
Renewal fee 0 month Deposit -
Free rent - Common service fee 3,100円
Brokerage fee 0 month Total Unit 195
Floor 2F Building age 30年~32年
Layout 3LDK Size(sq. m) 76㎡
Parking 平面 空き台数:16台 料金:6,050円近隣駐車場のご案内・アーバンみらい東大宮 東一番街
Japanese Site アーバンみらい東大宮 西一番街
Building feature
  • CATV
  • BS
  • Optical wiring
  • LAN in residential building
Room feature
  • Air conditioner
  • Drop-in stove
  •  Automatic hot water filling function
  • Separate kitchen
  • BS Antenna
  • Bath and toilet are separated
  • Auxiliary Heater
  • Balcony
  • Screen Door

※ Facilities vary by room/building