Albis Maebara| 2DK|Funabashi前原西

Albis Maebara| 2DK|Funabashi前原西

  • UR
  • NO KEY MONEY

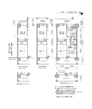
間取り画像

▲ Click to enlarge(All 9 images

Address Maehara-Nishi Funabashi Chiba6-1
Access Shin Keisei Line Maebara Station + 5 minutes walk
JR Sobu Line JB33 Tsudanuma Station 5 minutes bus ( to『公団東口』 bus stop) + 2 minutes walk
JR Sobu Line JB33 Tsudanuma Station + 23 minutes walk
Shin Keisei Line Shin-tsudanuma Station + 20 minutes walk
Rent 100,600円
Security Deposit 2 months Gratuity fee 0 month
Renewal fee 0 month Deposit -
Free rent - Common service fee 4,200円
Brokerage fee 0 month Total Unit 759
Floor 9F Building age 18年~26年
Layout 2DK Size(sq. m) 49㎡
Parking 平面 空き台数:38台 料金:8,690円~9,570円自走 空き台数:9台 料金:8,690円
Japanese Site アルビス前原
Building feature
  • CATV
  • LAN in residential building
  • Optical wiring
  • Elevator
  • Surveillance camera
Room feature
  • Drop-in stove
  •  Automatic hot water filling function
  • Screen Door
  • Air conditioner
  •  Intercom with monitor
  • Floor Heating
  • Bath and toilet are separated
  • Auxiliary Heater
  • Balcony

※ Facilities vary by room/building