間取り画像
▲ Click to enlarge(All 3 images)
| Address | Takasu Chiba-Mihama Chiba2 | ||
|---|---|---|---|
| Access |
JR Keiyo Line
『
JE15 Inagekaigan Station
』
+ 6 minutes walk
JR Sobu Line 『 JB37 Inage Station 』 5 minutes bus ( to『高洲第二』 bus stop) + 7 minutes walk Keisei Chiba Line 『 Midori Dai Station 』 + 22 minutes walk Keisei Chiba Line 『 Keisei Inage Station 』 + 20 minutes walk |
||
| Rent | 71,100円 | ||
| Security Deposit | 2 months | Gratuity fee | 0 month |
| Renewal fee | 0 month | Deposit | - |
| Free rent | - | Common service fee | 2,200円 |
| Brokerage fee | 0 month | Total Unit | 4,689 |
| Floor | 4F | Building age | 51年~53年 |
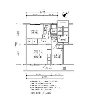
| Layout | 2LDK | Size(sq. m) | 50㎡ |
| Parking | 平面 空き台数:639台 料金:9,790円自走 空き台数:114台 料金:9,790円~11,000円 | ||
| Japanese Site | 高洲第一 | ||
| Building feature |
|---|
|
|
| Room feature |
|
|
※ Facilities vary by room/building
| Floor plan | Condition | Floor / Story | Rent | Layout Size(sq. m) |
|
|---|---|---|---|---|---|
|
|
Available | 4F | 54,800円 |
2DK 45㎡ |
Room details
Bookmark |