Kyodo Akatsutsumi Dori| 2LDK|Setagaya桜上水

Kyodo Akatsutsumi Dori| 2LDK|Setagaya桜上水

  • UR
  • NO KEY MONEY

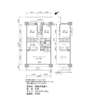
間取り画像

▲ Click to enlarge(All 3 images

Address Sakurajousui Setagaya Tokyo1-1
Access Odakyu Odawara Line Kyodo Station + 10 minutes walk
Tokyu Setagaya Line Matsubara Station + 11 minutes walk
Keio Line KO08 Sakurajosui Station + 15 minutes walk
Rent 191,000円
Security Deposit 2 months Gratuity fee 0 month
Renewal fee 0 month Deposit -
Free rent - Common service fee 5,150円
Brokerage fee 0 month Total Unit 351
Floor 5F Building age 30年~32年
Layout 2LDK Size(sq. m) 66㎡
Parking 機械 空き台数:2台 料金:19,140円
Japanese Site 経堂赤堤通り
Building feature
  • BS
  • Optical wiring
  • CATV
  • Elevator
  • Surveillance camera
  • Delivery box
Room feature
  • Drop-in stove
  •  Automatic hot water filling function
  • Air conditioner
  •  Intercom with monitor
  • Trunk room
  • Bath and toilet are separated
  • Auxiliary Heater
  • Balcony

※ Facilities vary by room/building