Kitasuna 5chome| 1LDK|Koutou北砂

Kitasuna 5chome| 1LDK|Koutou北砂

  • UR
  • NO KEY MONEY

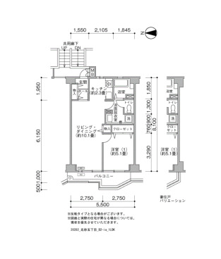
間取り画像

▲ Click to enlarge(All 10 images

Address Kitasuna Koutou Tokyo5-20
Access Toei Shinjuku Line S15 Ojima Station + 10 minutes walk
JR Sobu Line JB23 Kameido Station 7 minutes bus ( to『北砂五丁目団地』 bus stop) + 1 minutes walk
Tobu Kameido Line TS44 Kameido Station 7 minutes bus ( to『北砂五丁目団地』 bus stop) + 1 minutes walk
Tokyo Metro Tozai Line T14 Toyocho Station 9 minutes bus ( to『北砂三丁目』 bus stop) + 6 minutes walk
Rent 98,900円
Security Deposit 2 months Gratuity fee 0 month
Renewal fee 0 month Deposit -
Free rent - Common service fee 3,700円
Brokerage fee 0 month Total Unit 2,809
Floor 11F Building age 29年~49年
Layout 1LDK Size(sq. m) 47㎡
Parking 平面 空き台数:7台 料金:24,420円自走 空き台数:55台 料金:24,420円~27,500円
Japanese Site 北砂五丁目
Building feature
  • CATV
  • BS
  • Optical wiring
  • Elevator
  • Surveillance camera
Room feature
  • Air conditioner
  • Drop-in stove
  •  Intercom with monitor
  • BS Antenna
  • Bath and toilet are separated
  • Auxiliary Heater
  • Balcony

※ Facilities vary by room/building