Chaleureux Shin Kamata| 1LDK|Oota新蒲田

Chaleureux Shin Kamata| 1LDK|Oota新蒲田

  • UR
  • NO KEY MONEY

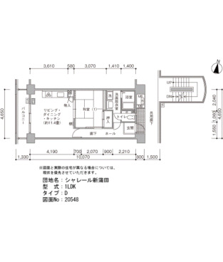
間取り画像

Address Shin-Kamata Oota Tokyo2-12-18
Access Tokyu Tamagawa Line Yaguchi no Watashi Station + 6 minutes walk
JR Keihin Tohoku Line JK17 Kamata Station + 15 minutes walk
JR Negishi Line Kamata Station + 15 minutes walk
Rent 129,500円
Security Deposit 2 months Gratuity fee 0 month
Renewal fee 0 month Deposit -
Free rent - Common service fee 6,000円
Brokerage fee 0 month Total Unit 95
Floor 2F Building age 29年~30年
Layout 1LDK Size(sq. m) 46㎡
Parking 機械 空き台数:11台 料金:20,240円~25,300円
Japanese Site シャレール新蒲田
Building feature
  • CATV
  • BS
  • Optical wiring
  • Elevator
  • Surveillance camera
  • Delivery box
Room feature
  • Air conditioner
  • Drop-in stove
  •  Automatic hot water filling function
  • BS Antenna
  • Bath and toilet are separated
  • Auxiliary Heater
  • Balcony

※ Facilities vary by room/building