Shin Yagisawa| 2LDK|Nishi-Tokyo柳沢

Shin Yagisawa| 2LDK|Nishi-Tokyo柳沢

  • UR
  • NO KEY MONEY

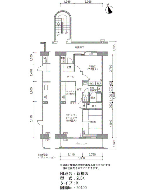
間取り画像

▲ Click to enlarge(All 9 images

Address Yanagisawa Nishi-Tokyo Tokyo3-4
Access Seibu Shinjuku Line SS16 Seibu-Yagisawa Station + 11 minutes walk
JR Chuo Line Mitaka Station 9 minutes bus ( to『武蔵野北高校前』 bus stop) + 6 minutes walk
JR Sobu Line JB02 Kichijoji Station 11 minutes bus ( to『武蔵野北高校前』 bus stop) + 6 minutes walk
Rent 129,700円
Security Deposit 2 months Gratuity fee 0 month
Renewal fee 0 month Deposit -
Free rent - Common service fee 4,180円
Brokerage fee 0 month Total Unit 513
Floor 3F Building age 31年~33年
Layout 2LDK Size(sq. m) 66㎡
Parking 平面 空き台数:15台 料金:13,640円機械 空き台数:13台 料金:12,320円~13,640円
Japanese Site 新柳沢
Building feature
  • CATV
  • BS
  • Optical wiring
  • Elevator
  • Surveillance camera
Room feature
  • Drop-in stove
  •  Automatic hot water filling function
  • Separate kitchen
  • Air conditioner
  •  Intercom with monitor
  • Bath and toilet are separated
  • Auxiliary Heater
  • Balcony

※ Facilities vary by room/building