Green Heights Musashisakai Dori| 3LDK|Nishi-Tokyo新町

Green Heights Musashisakai Dori| 3LDK|Nishi-Tokyo新町

  • UR
  • NO KEY MONEY

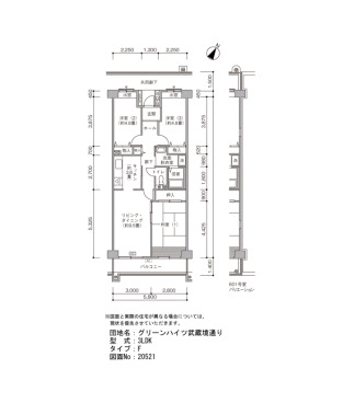
間取り画像

▲ Click to enlarge(All 6 images

Address Shinmachi Nishi-Tokyo Tokyo1-4
Access JR Chuo Line Musashisakai Station + 20 minutes walk
JR Chuo Line Musashisakai Station 5 minutes bus ( to『至誠学舎東京前』 bus stop) + 1 minutes walk
JR Chuo Line Mitaka Station 10 minutes bus ( to『新町一丁目』 bus stop) + 1 minutes walk
Seibu Shinjuku Line SS17 Tanashi Station 4 minutes bus ( to『新町一丁目』 bus stop) + 2 minutes walk
Rent *****
Security Deposit ***** Gratuity fee *****
Renewal fee ***** Deposit *****
Free rent ***** Common service fee *****
Brokerage fee ***** Total Unit 761
Floor ***** Building age 27年~31年
Layout 3LDK Size(sq. m) 71㎡
Parking 平面 空き台数:19台 料金:14,960円~16,390円機械 空き台数:8台 料金:14,850円~16,390円
Japanese Site グリーンハイツ武蔵境通り
Building feature
  • CATV
  • BS
  • Optical wiring
  • Elevator
  • Surveillance camera
Room feature
  • Air conditioner
  • Drop-in stove
  •  Automatic hot water filling function
  •  Intercom with monitor
  • Electronic Bidet
  • Separate kitchen
  • BS Antenna
  • Bath and toilet are separated
  • Auxiliary Heater
  • Balcony

※ Facilities vary by room/building