Urbania Shiga Koen| 2LDK|Nagoya-Kita中丸町

Urbania Shiga Koen| 2LDK|Nagoya-Kita中丸町

  • UR
  • NO KEY MONEY
Address Nakamaruchou Nagoya-Kita Aichi2-66 他
Access Nagoya Municipal Meijo Line Kurokawa Station + 13 minutes walk
Nagoya Municipal Tsurumai Line Shonaidori Station + 17 minutes walk
Nagoya Municipal Meijo Line Sakae Station 14 minutes bus ( to『志賀公園前』 bus stop) + 3 minutes walk
Rent 130,900円
Security Deposit 2 months Gratuity fee 0 month
Renewal fee 0 month Deposit -
Free rent - Common service fee 4,200円
Brokerage fee 0 month Total Unit 712
Floor 1F Building age 24年~28年
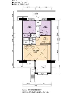
Layout 2LDK Size(sq. m) 93㎡
Parking 平面 空き台数:1台 料金:11,110円自走 空き台数:102台 料金:11,110円~12,540円(軽専用 空き台数:2台 料金:9,460円)
Japanese Site アーバニア志賀公園
Building feature
  • CATV
  • BS
  • Optical wiring
  • LAN in residential building
  • Elevator
  • Surveillance camera
Room feature
  • Air conditioner
  • Drop-in stove
  •  Automatic hot water filling function
  • Automatic Lock
  •  Intercom with monitor
  • Floor Heating
  • Electronic Bidet
  • Separate kitchen
  • Bathroom Dryer
  • Bath and toilet are separated
  • Auxiliary Heater
  • Balcony
  • Screen Door

※ Facilities vary by room/building

Map

この物件の他の空室一覧

Floor plan Condition Floor / Story Rent Layout
Size(sq. m)
Available 2F 107,900円 2LDK
67㎡
Room details
Bookmark
Available 6F 102,000円 1LDK
63㎡
Room details
Bookmark
Available 8F 99,900円 2LDK
68㎡
Room details
Bookmark
Available 8F 90,900円 1LDK
51㎡
Room details
Bookmark
Available 9F 121,200円 3LDK
72㎡
Room details
Bookmark