Funabori 6chome Park Heights| 3LDK|Edogawa船堀

Funabori 6chome Park Heights| 3LDK|Edogawa船堀

  • UR
  • NO KEY MONEY
Address Funahori Edogawa Tokyo6-5
Access Toei Shinjuku Line S17 Funabori Station + 7 minutes walk
Tokyo Metro Tozai Line T17 Kasai Station 8 minutes bus ( to『陣屋橋』 bus stop) + 3 minutes walk
Tokyo Metro Tozai Line T16 Nishi-kasai Station 11 minutes bus ( to『船堀三丁目』 bus stop) + 2 minutes walk
Rent 126,800円
Security Deposit 2 months Gratuity fee 0 month
Renewal fee 0 month Deposit -
Free rent - Common service fee 2,800円
Brokerage fee 0 month Total Unit 328
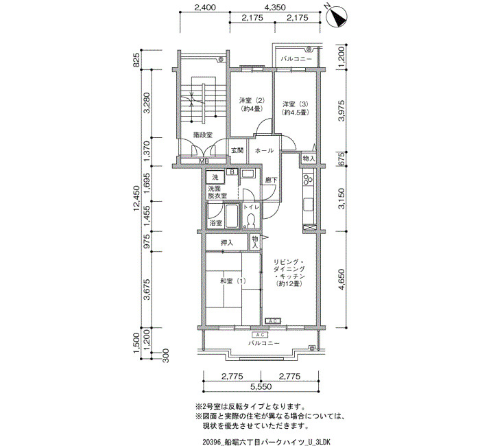
Floor 4F Building age 38年~40年
Layout 3LDK Size(sq. m) 63㎡
Parking 平面 空き台数:2台 料金:17,820円
Japanese Site 船堀六丁目パークハイツ
Building feature
  • Optical wiring
  • CATV
  • Elevator
  • Surveillance camera
Room feature
  •  Automatic hot water filling function
  • Air conditioner
  • Drop-in stove
  •  Intercom with monitor
  • Bath and toilet are separated
  • Auxiliary Heater
  • Balcony

※ Facilities vary by room/building