Park Side Tanashi Mukodai| 2LDK|Nishi-Tokyo向台町

Park Side Tanashi Mukodai| 2LDK|Nishi-Tokyo向台町

  • UR
  • NO KEY MONEY

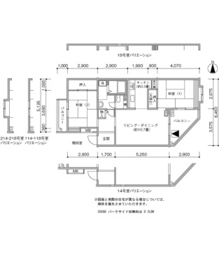
間取り画像

▲ Click to enlarge(All 9 images

Address Mukoudaichou Nishi-Tokyo Tokyo5-4-1
Access Seibu Shinjuku Line SS17 Tanashi Station + 12 minutes walk
Rent 115,100円
Security Deposit 2 months Gratuity fee 0 month
Renewal fee 0 month Deposit -
Free rent - Common service fee 2,900円
Brokerage fee 0 month Total Unit 126
Floor 1F Building age 40年
Layout 2LDK Size(sq. m) 72㎡
Parking 駐車場 空きなし
Japanese Site パークサイド田無向台
Building feature
  • CATV
  • BS
  • Optical wiring
Room feature
  • Drop-in stove
  • Air conditioner
  • Two or More Cook-stove
  •  Automatic hot water filling function
  •  Intercom with monitor
  • BS Antenna
  • Bath and toilet are separated
  • Auxiliary Heater
  • Balcony

※ Facilities vary by room/building