Amity Omori Higashi|UR:20_5540|Oota大森東

Amity Omori Higashi

  • UR
  • NO KEY MONEY
Address Omori-Higashi Oota Tokyo1-24
Access Keikyu Main Line KK08 Heiwajima Station + 7 minutes walk
Tokyo Mono Rail Ryutsu center Station + 19 minutes walk
Building age 29年 Total Unit 53
Rent ¥119,200~195,100 Security Deposit 2 months
Common service fee ¥11,400 Gratuity fee 0 month
Brokerage fee 0 month
Parking 駐車場 空きなし
Japanese Site アミティ大森東
Building feature
  • CATV
  • BS
  • Optical wiring
Room feature
  • Drop-in stove
  •  Automatic hot water filling function
  • Air conditioner
  •  Intercom with monitor
  • Bathroom Dryer
  • Bath and toilet are separated
  • Auxiliary Heater
  • Balcony
  • Separate kitchen
  • Trunk room

※ Facilities vary by room/building

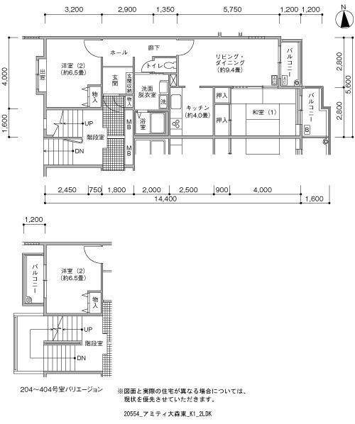
Layout Size(sq. m) Total Unit
1DK 42〜43 4
1LDK 51 6
2DK 55〜57 11
2LDK(ルーフバルコニー) 59〜71 29
3DK 78 1
3LDK 78 2

Map

UR・JKKコンシェルジュでご成約いただいたお部屋一覧

Floor / Story Layout Size(sq. m)
Reserved 1F 2DK 56㎡ Details
Reserved 1F 1LDK 51㎡ Details
Reserved 2F 2LDK 67㎡ Details
Reserved 2F 2LDK 59㎡ Details
Reserved 3F 2LDK 67㎡ Details
Reserved 4F 2LDK 67㎡ Details