Kawatsuru Green Town Shintsuru| 3LDK|Tsugashima南町

Kawatsuru Green Town Shintsuru| 3LDK|Tsugashima南町

  • UR
  • NO KEY MONEY

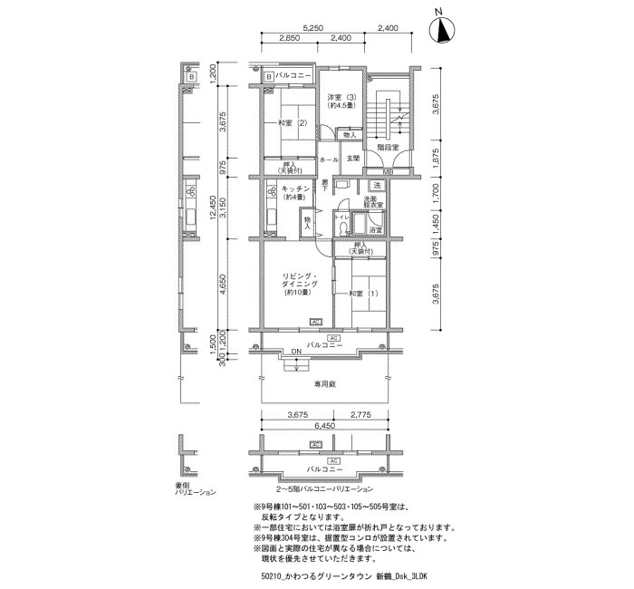
間取り画像

▲ Click to enlarge(All 3 images

Address Minamimachi Tsugashima Saitama2-1
Access Tobu Tojo Line Tsurugashima Station 4 minutes bus ( to『川鶴センター』 bus stop) + 1 minutes walk
JR Kawagoe Line Kasahata Station + 27 minutes walk
JR Kawagoe Line Matoba Station + 39 minutes walk
Rent 71,300円
Security Deposit 2 months Gratuity fee 0 month
Renewal fee 0 month Deposit -
Free rent - Common service fee 2,720円
Brokerage fee 0 month Total Unit 309
Floor 3F Building age 39年~41年
Layout 3LDK Size(sq. m) 83㎡
Parking 平面 空き台数:12台 料金:6,600円
Japanese Site かわつるグリーンタウン 新鶴
Building feature
  • Optical wiring
Room feature
  • Stove type stove
  •  Automatic hot water filling function
  • Separate kitchen
  • Screen Door
  • Air conditioner
  • Bath and toilet are separated
  • Auxiliary Heater
  • Balcony

※ Facilities vary by room/building