トップ画像画像
▲ Click to enlarge(All 17 images)
| Address | Minamimachi Tsugashima Saitama2-1 | ||
|---|---|---|---|
| Access |
Tobu Tojo Line
『
Tsurugashima Station
』
4 minutes bus
( to『川鶴センター』 bus stop)
+ 1 minutes walk
JR Kawagoe Line 『 Kasahata Station 』 + 27 minutes walk JR Kawagoe Line 『 Matoba Station 』 + 39 minutes walk |
||
| Building age | 39年~41年 | Total Unit | 309 |
| Rent | ¥51,000~91,700 | Security Deposit | 2 months |
| Common service fee | ¥2,720 | Gratuity fee | 0 month |
| Brokerage fee | 0 month | ||
| Parking | 平面 空き台数:12台 料金:6,600円 | ||
| Japanese Site | かわつるグリーンタウン 新鶴 | ||
| Building feature |
|---|
|
|
| Room feature |
|
|
※ Facilities vary by room/building
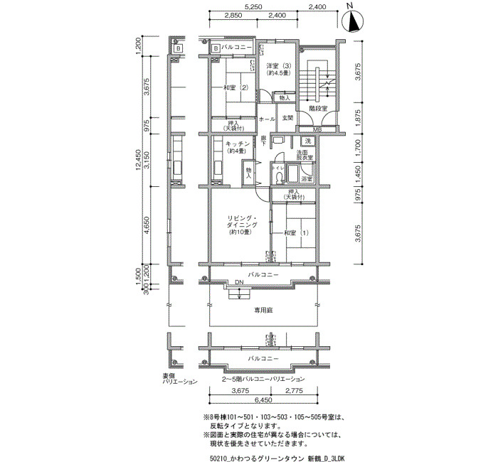
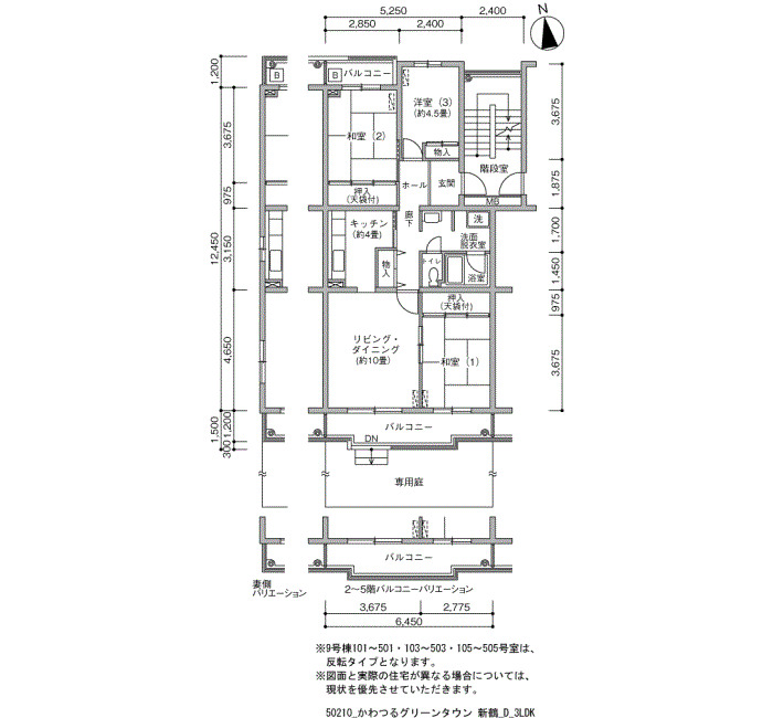
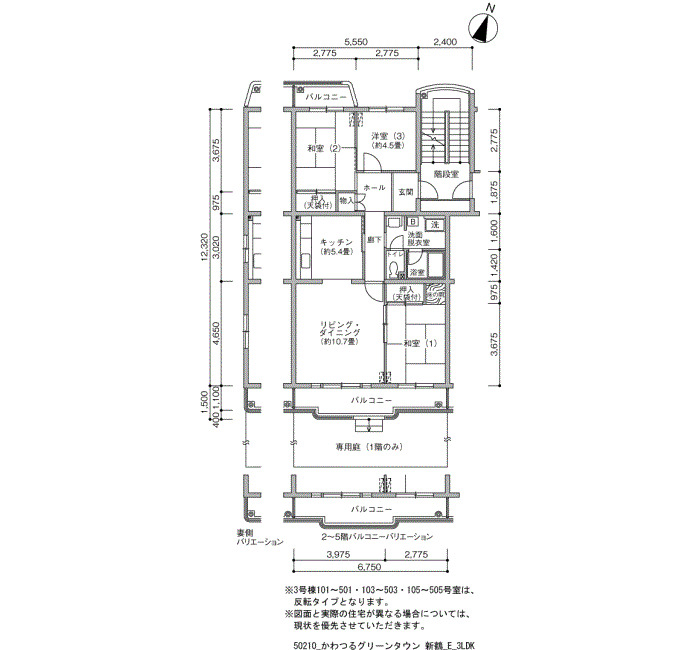
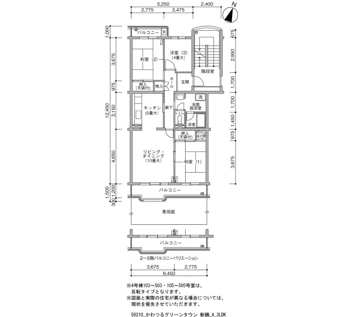
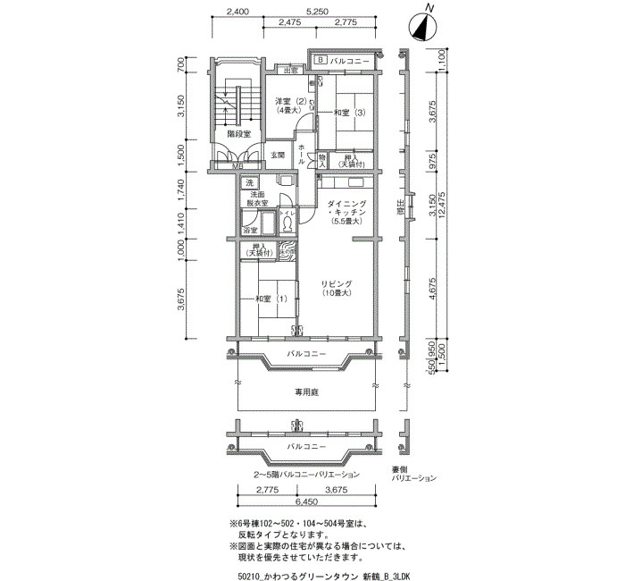
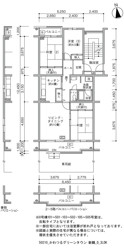
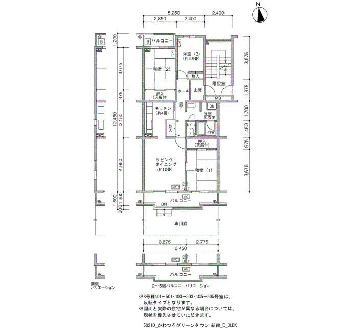
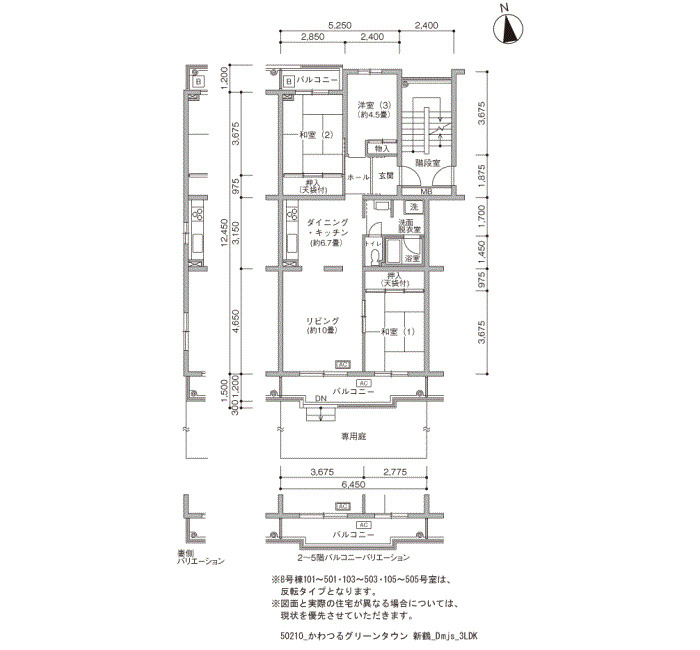
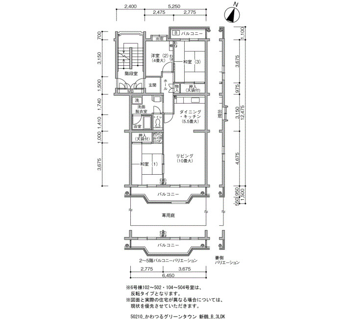
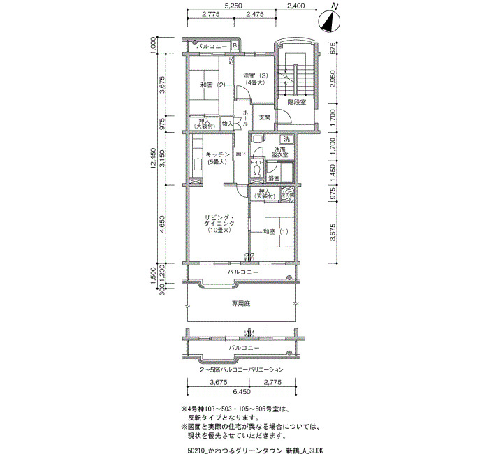
| Layout | Size(sq. m) | Total Unit |
|---|---|---|
| 1LDK | 57 | 37 |
| 3LDK | 74〜77 | 235 |
| 4LDK | 92・99 | 27 |
| Floor / Story | Layout | Size(sq. m) | |||
|---|---|---|---|---|---|
|
|
Reserved | 1F | 4LDK | 99㎡ | Details |
|
|
Reserved | 1F | 3LDK | 80㎡ | Details |
|
|
Reserved | 1F | 3LDK | 77㎡ | Details |
|
|
Reserved | 1F | 3LDK | 83㎡ | Details |
|
|
Reserved | 1F | 3LDK | 80㎡ | Details |
|
|
Reserved | 1F | 3LDK | 80㎡ | Details |
|
|
Reserved | 1F | 3LDK | 83㎡ | Details |
|
|
Reserved | 1F | 3LDK | 81㎡ | Details |
|
|
Reserved | 1F | 3LDK | 83㎡ | Details |
|
|
Reserved | 1F | 3LDK | 77㎡ | Details |
|
|
Reserved | 1F | 3LDK | 83㎡ | Details |
|
|
Reserved | 1F | 3LDK | 77㎡ | Details |
|
|
Reserved | 1F | 3LDK | 80㎡ | Details |
|
|
Reserved | 1F | 3LDK | 77㎡ | Details |
|
|
Reserved | 1F | 3LDK | 80㎡ | Details |
|
|
Reserved | 1F | 3LDK | 83㎡ | Details |
|
|
Reserved | 1F | 3LDK | 77㎡ | Details |
|
|
Reserved | 1F | 3LDK | 81㎡ | Details |
|
|
Reserved | 2F | 3LDK | 83㎡ | Details |
|
|
Reserved | 2F | 3LDK | 83㎡ | Details |
|
|
Reserved | 2F | 3LDK | 80㎡ | Details |
|
|
Reserved | 2F | 3LDK | 80㎡ | Details |
|
|
Reserved | 2F | 3LDK | 77㎡ | Details |
|
|
Reserved | 2F | 3LDK | 80㎡ | Details |
|
|
Reserved | 2F | 3LDK | 77㎡ | Details |
|
|
Reserved | 2F | 3LDK | 77㎡ | Details |
|
|
Reserved | 2F | 3LDK | 77㎡ | Details |
|
|
Reserved | 2F | 4LDK | 107㎡ | Details |
|
|
Reserved | 2F | 3LDK | 77㎡ | Details |
|
|
Reserved | 2F | 3LDK | 80㎡ | Details |
|
|
Reserved | 2F | 4LDK | 107㎡ | Details |
|
|
Reserved | 2F | 3LDK | 80㎡ | Details |
|
|
Reserved | 2F | 3LDK | 83㎡ | Details |
|
|
Reserved | 2F | 3LDK | 77㎡ | Details |
|
|
Reserved | 3F | 4LDK | 107㎡ | Details |
|
|
Reserved | 3F | 4LDK | 99㎡ | Details |
|
|
Reserved | 3F | 3LDK | 77㎡ | Details |
|
|
Reserved | 3F | 3LDK | 80㎡ | Details |
|
|
Reserved | 3F | 3LDK | 83㎡ | Details |
|
|
Reserved | 3F | 3LDK | 77㎡ | Details |
|
|
Reserved | 3F | 3LDK | 77㎡ | Details |
|
|
Reserved | 3F | 3LDK | 83㎡ | Details |
|
|
Reserved | 3F | 3LDK | 77㎡ | Details |
|
|
Reserved | 3F | 3LDK | 80㎡ | Details |
|
|
Reserved | 3F | 3LDK | 83㎡ | Details |
|
|
Reserved | 3F | 4LDK | 107㎡ | Details |
|
|
Reserved | 3F | 3LDK | 80㎡ | Details |
|
|
Reserved | 3F | 4LDK | 107㎡ | Details |
|
|
Reserved | 3F | 3LDK | 81㎡ | Details |
|
|
Reserved | 3F | 1LDK | 57㎡ | Details |
|
|
Reserved | 3F | 3LDK | 83㎡ | Details |
|
|
Reserved | 3F | 3LDK | 77㎡ | Details |
|
|
Reserved | 3F | 3LDK | 80㎡ | Details |
|
|
Reserved | 3F | 3LDK | 80㎡ | Details |
|
|
Reserved | 3F | 3LDK | 80㎡ | Details |
|
|
Reserved | 3F | 3LDK | 77㎡ | Details |
|
|
Reserved | 3F | 1LDK | 57㎡ | Details |
|
|
Reserved | 3F | 3LDK | 83㎡ | Details |
|
|
Reserved | 3F | 3LDK | 83㎡ | Details |
|
|
Reserved | 3F | 3LDK | 77㎡ | Details |
|
|
Reserved | 3F | 3LDK | 83㎡ | Details |
|
|
Reserved | 4F | 3LDK | 80㎡ | Details |
|
|
Reserved | 4F | 3LDK | 80㎡ | Details |
|
|
Reserved | 4F | 3LDK | 77㎡ | Details |
|
|
Reserved | 4F | 1LDK | 77㎡ | Details |
|
|
Reserved | 4F | 3LDK | 80㎡ | Details |
|
|
Reserved | 4F | 3LDK | 83㎡ | Details |
|
|
Reserved | 4F | 4LDK | 107㎡ | Details |
|
|
Reserved | 4F | 3LDK | 80㎡ | Details |
|
|
Reserved | 4F | 3LDK | 80㎡ | Details |
|
|
Reserved | 4F | 3LDK | 83㎡ | Details |
|
|
Reserved | 4F | 3LDK | 80㎡ | Details |
|
|
Reserved | 4F | 3LDK | 80㎡ | Details |
|
|
Reserved | 4F | 3LDK | 80㎡ | Details |
|
|
Reserved | 4F | 3LDK | 83㎡ | Details |
|
|
Reserved | 4F | 3LDK | 81㎡ | Details |
|
|
Reserved | 4F | 3LDK | 83㎡ | Details |
|
|
Reserved | 4F | 3LDK | 80㎡ | Details |
|
|
Reserved | 4F | 3LDK | 83㎡ | Details |
|
|
Reserved | 4F | 3LDK | 77㎡ | Details |
|
|
Reserved | 4F | 3LDK | 77㎡ | Details |
|
|
Reserved | 4F | 3LDK | 81㎡ | Details |
|
|
Reserved | 4F | 3LDK | 80㎡ | Details |
|
|
Reserved | 4F | 3LDK | 80㎡ | Details |
|
|
Reserved | 4F | 3LDK | 83㎡ | Details |
|
|
Reserved | 5F | 3LDK | 80㎡ | Details |
|
|
Reserved | 5F | 3LDK | 80㎡ | Details |
|
|
Reserved | 5F | 3LDK | 80㎡ | Details |
|
|
Reserved | 5F | 3LDK | 81㎡ | Details |
|
|
Reserved | 5F | 3LDK | 80㎡ | Details |
|
|
Reserved | 5F | 4LDK | 107㎡ | Details |
|
|
Reserved | 5F | 4LDK | 99㎡ | Details |
|
|
Reserved | 5F | 4LDK | 107㎡ | Details |
|
|
Reserved | 5F | 3LDK | 81㎡ | Details |
|
|
Reserved | 5F | 3LDK | 80㎡ | Details |
|
|
Reserved | 5F | 3LDK | 83㎡ | Details |
|
|
Reserved | 5F | 3LDK | 77㎡ | Details |
|
|
Reserved | 5F | 3LDK | 80㎡ | Details |
|
|
Reserved | 5F | 3LDK | 83㎡ | Details |
|
|
Reserved | 5F | 4LDK | 107㎡ | Details |
|
|
Reserved | 5F | 3LDK | 80㎡ | Details |
|
|
Reserved | 5F | 3LDK | 77㎡ | Details |
|
|
Reserved | 5F | 3LDK | 83㎡ | Details |
|
|
Reserved | 5F | 3LDK | 83㎡ | Details |
|
|
Reserved | 5F | 3LDK | 80㎡ | Details |
|
|
Reserved | 5F | 3LDK | 77㎡ | Details |
|
|
Reserved | 5F | 3LDK | 80㎡ | Details |