Iruma Ekimae Plaza| 4DK|Iruma向陽台

Iruma Ekimae Plaza| 4DK|Iruma向陽台

  • UR
  • NO KEY MONEY

間取り画像

Address Kouyodai Iruma Saitama1-1-17
Access Seibu Ikebukuro Line Irumashi Station + 3 minutes walk
Seibu Ikebukuro Line Inariyama-koen Station + 12 minutes walk
Seibu Shinjuku Line SS26 Sayama-shi Station + 38 minutes walk
Rent 98,600円
Security Deposit 2 months Gratuity fee 0 month
Renewal fee 0 month Deposit -
Free rent - Common service fee 4,700円
Brokerage fee 0 month Total Unit 380
Floor 6F Building age 38年~39年
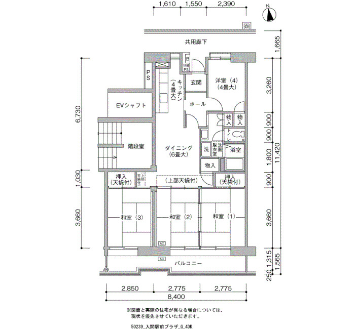
Layout 4DK Size(sq. m) 75㎡
Parking 平面 空き台数:17台 料金:8,690円
Japanese Site 入間駅前プラザ
Building feature
  • BS
  • Optical wiring
  • Elevator
  • Surveillance camera
Room feature
  • Air conditioner
  •  Automatic hot water filling function
  • Bath and toilet are separated
  • Balcony
  • Screen Door

※ Facilities vary by room/building