間取り画像
▲ Click to enlarge(All 3 images)
| Address | 神奈川県横浜市青葉区青葉台1-7-5 | ||
|---|---|---|---|
| Access |
Tokyu Denentoshi Line
『
Aobadai Station
』
+ 2 minutes walk
|
||
| Rent | 62,400円 | ||
| Security Deposit | 2 months | Gratuity fee | 0 month |
| Renewal fee | 0 month | Deposit | - |
| Free rent | - | Common service fee | 3,700円 |
| Brokerage fee | 0 month | Total Unit | 385 |
| Floor | 5F | Building age | 58年 |
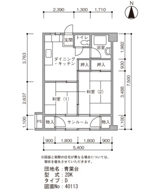
| Layout | 2DK | Size(sq. m) | 41㎡ |
| Parking | - | ||
| Japanese Site | 青葉台 | ||
| Building feature |
|---|
|
|
| Room feature |
|
|
※ Facilities vary by room/building
Urban Doeru Seya
Hashido Seya-Yokohama Kanagawa1-35
Tokaichiba Hill Town Comfort Toka Ichiba 11Bangai
Toukaichiba Midori-Yokohama Kanagawa1501
Tokaichiba Hill Town Comfort Toka Ichiba 9Bangai
Toukaichiba Midori-Yokohama Kanagawa1258
Tokaichiba Hill Town Comfort Toka Ichiba 14Bangai
Toukaichiba Midori-Yokohama Kanagawa1258